Ciudad Quesada · Ciudad Quesada Fristående Villa · Begagnad

Ciudad Quesada · Ciudad Quesada Fristående Villa · Begagnad

Nyckelfunktioner

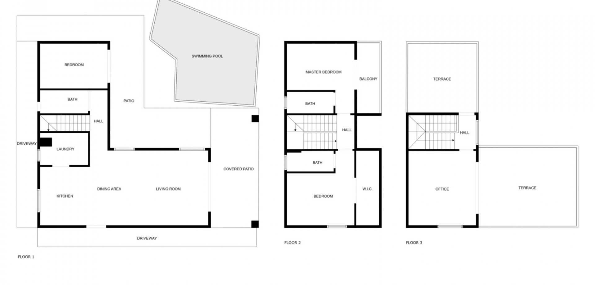
Sovrum: 4
Badrum: 3
Byggd: 153m2
Tomt: 504m2
Pool: Ja

Egenskaper

Solarium
Terrace
Garden
Solar panels
Under-floor heating
Private pool
Air conditioning

Plats

Ekonomi

Informationen som ges här kan innehålla felskrivningar och utgör inte en del av något kontrakt. Erbjudandet kan ändras eller dras tillbaka utan förvarning. Priserna inkluderar inte övriga omkostnader.

POWERED BY HABENO

Valutaväxling

  • Pund: 609.304 GBP
  • Ryska rubeln: 609.304 RUB
  • Schweiziska franc: 645.247 CHF
  • Kinesiska yuan: 5.625.762 CNY
  • Dollar: 824.610 USD
  • Svenska kronor: 7.551.297 SEK
  • Den norska kronan: 7.700.883 NOK

Be om information

Responsable del tratamiento: Movr Real Estate SL, Finalidad del tratamiento: Gestión y control de los servicios ofrecidos a través de la página Web de Servicios inmobiliarios, Envío de información a traves de newsletter y otros, Legitimación: Por consentimiento, Destinatarios: No se cederan los datos, salvo para elaborar contabilidad, Derechos de las personas interesadas: Acceder, rectificar y suprimir los datos, solicitar la portabilidad de los mismos, oponerse altratamiento y solicitar la limitación de éste, Procedencia de los datos: El Propio interesado, Información Adicional: Puede consultarse la información adicional y detallada sobre protección de datos Aquí.

WhatsApp