Located in the well-established area of Villamartín, this beautifully renovated ground floor apartment offers a perfect combination of modern design, comfort, and outdoor living, making it an excellent property for sale in Villamartín Orihuela Costa.
The property has been fully refurbished, featuring new flooring, updated installations (electricity and plumbing), and a stylish, move-in-ready finish throughout.
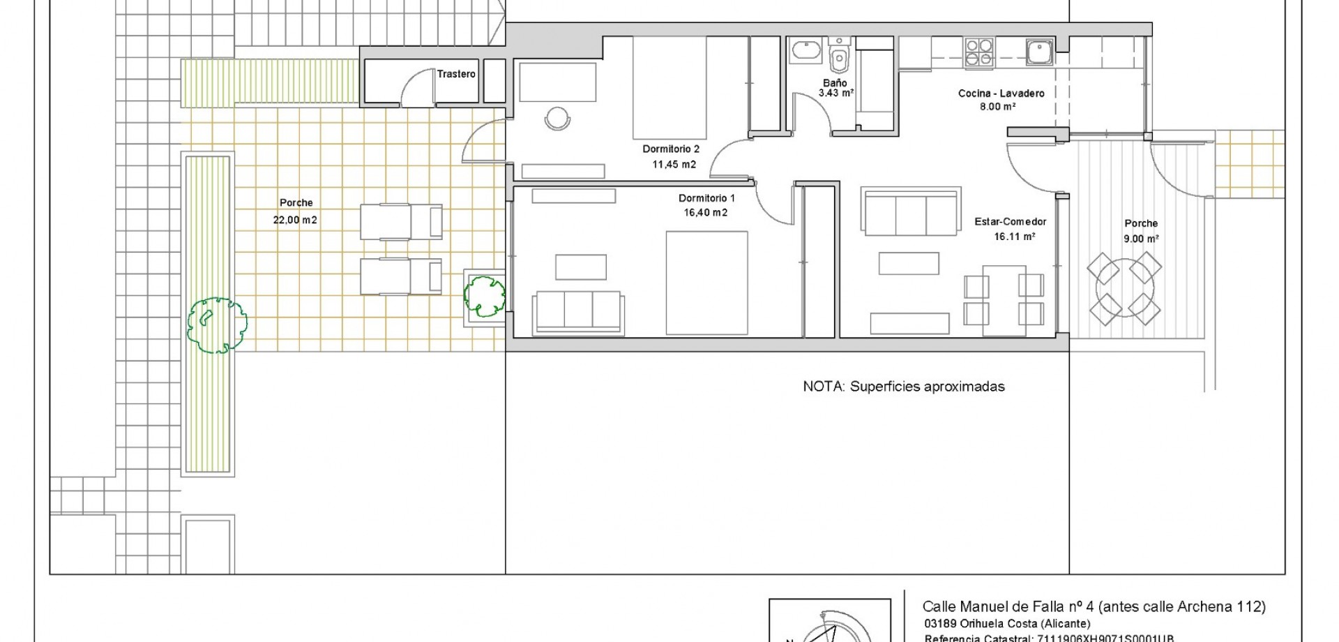
Inside, the home offers two spacious bedrooms with fitted wardrobes, a modern bathroom with walk-in shower, and a brand-new fully equipped kitchen with appliances including washing machine and dishwasher. The bright living area connects seamlessly to the outdoor spaces, creating a comfortable and functional layout.
One of the standout features of this property is its exceptional outdoor space. At the front, you will find a private covered porch with awning, perfect for relaxing in the shade, while at the rear there is a large private terrace, ideal for outdoor dining, entertaining, or enjoying the Mediterranean lifestyle all year round. The property also includes a practical exterior storage cupboard.
The apartment is set within a well-maintained residential community surrounded by lush communal gardens, creating a peaceful and green environment.
The location is highly convenient, within walking distance to La Rioja commercial centre, Dialprix supermarket, restaurants, and local amenities, and just minutes by car to Villamartín Plaza, Zenia Boulevard, golf courses, and the beaches of Orihuela Costa.
This is an ideal home near golf courses and the beaches of Orihuela Costa, and a perfect holiday home or investment property in Costa Blanca South.
This info given here is subject to errors and do not form part of any contract. The offer can be changed or withdrawn without notice. Prices do not include purchase costs.