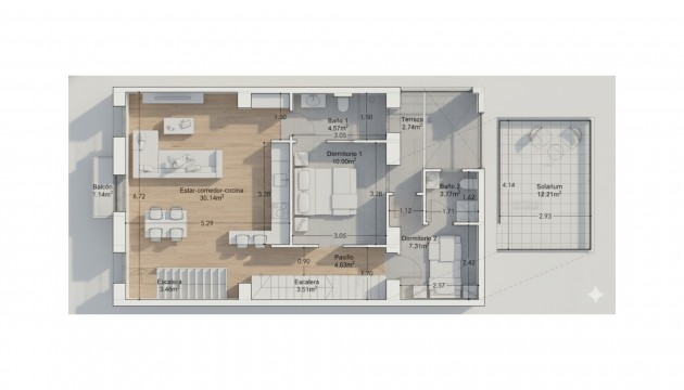
Costa Blanca Eiendom presents this elegant apartment with an independent entrance, currently under full renovation and reconstruction, located in the charming San Antón neighborhood of Alicante — one of the city’s most authentic and up-and-coming areas. The property is being completely refurbished, including plumbing, electrical systems, and interior finishes, and will feature top-quality furnishings and materials, ensuring a modern, efficient, and long-lasting home. The renders shown are indicative of the project’s final appearance once the renovation is completed. Upon entering the property, a private staircase leads to the main level, where you’ll find a bright two-bedroom, two-bathroom apartment designed in a contemporary style with natural materials. The main area offers an open-plan living-dining-kitchen space of over 30 m², bright and welcoming, with access to a small balcony. The master bedroom, directly accessible from the living room, includes an ensuite bathroom and access to a private terrace — perfect for enjoying the tranquility of the surroundings. Behind the staircase, there is a second bedroom, also with an ensuite bathroom, ideal for guests or as an additional room. Its privileged location in San Antón offers a vibrant and comfortable urban lifestyle: just a few steps from the Central Market, Santa Bárbara Castle, and Postiguet Beach, as well as excellent access to public transport, shops, restaurants, and all essential services. This apartment represents a unique opportunity for those seeking an exclusive, modern home full of character in the heart of Alicante. Contact us for more information, or join one of our no-obligation tours to visit this wonderful project.
This info given here is subject to errors and do not form part of any contract. The offer can be changed or withdrawn without notice. Prices do not include purchase costs.