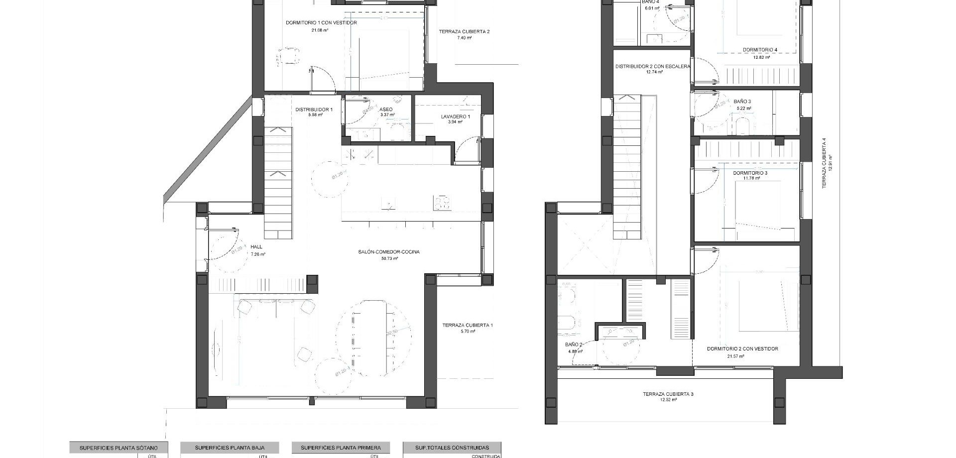
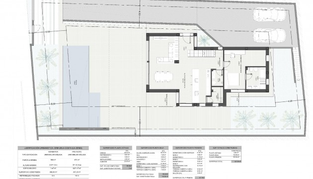
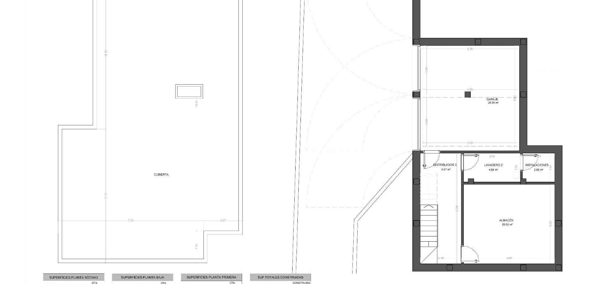
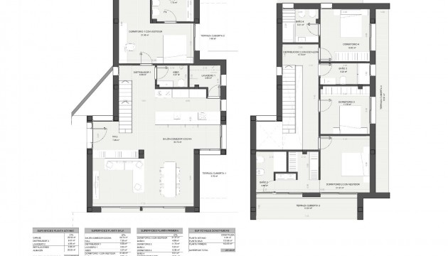
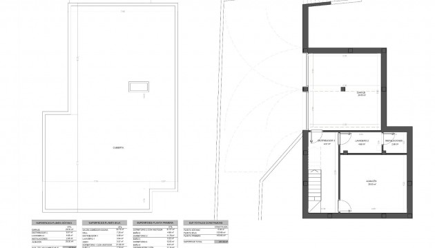
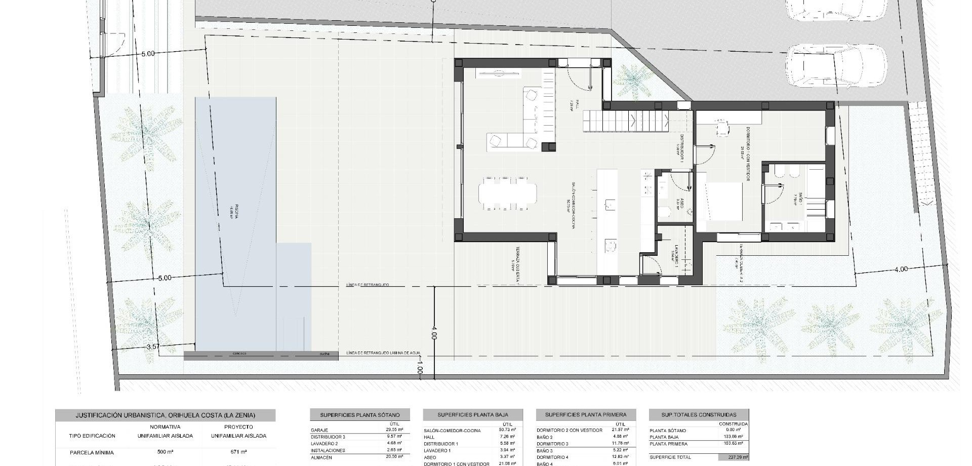
Newly built luxury villa for sale in La Zenia, Orihuela Costa Exclusive beachside living on the Costa Blanca Located just 600 metres from the sandy beaches of La Zenia, this stunning luxury villa in Orihuela Costa offers the perfect balance between comfort, design and Mediterranean lifestyle. With 4 spacious bedrooms, each with its own en-suite bathroom, plus a guest toilet, this house is ideal for families or those looking for a spacious holiday retreat close to the sea. Premium design and exterior features Set on a generous private plot of 670 m2, the villa is designed with high-quality finishes and attention to detail. It features: South-southeast orientation for optimal natural light Large private swimming pool Private underground garage with space for 2 vehicles and surface parking for several additional vehicles. Beautiful landscaped garden ideal for outdoor living This property allows you to enjoy the sunny climate of the Costa Blanca all year round. Privileged location in La Zenia La Zenia is a highly sought-after residential area in Orihuela Costa, known for its lively community, year-round amenities and proximity to the beach. Residents enjoy access to: La Zenia Boulevard shopping centre: 2.5 km Villamartín golf course: 4.5 km Torrevieja town centre: 9 km Alicante Airport: 40 km Murcia-Corvera Airport: 60 km Surrounded by restaurants, bars, international schools and supermarkets, La Zenia is one of the most dynamic areas on the southern Costa Blanca. Secure your dream villa in La Zenia Whether you are looking for a luxury family home or a prime investment on the Mediterranean coast, this villa is an exceptional opportunity. Contact us today for more information, to arrange a viewing and make your dream home a reality before it's too late.
This info given here is subject to errors and do not form part of any contract. The offer can be changed or withdrawn without notice. Prices do not include purchase costs.