Położony w bardzo poszukiwanej okolicy Los Narejos w Los Alcázares, ten pięknie odnowiony bungalow narożny oferuje idealne połączenie nowoczesnego komfortu, życia na świeżym powietrzu oraz doskonałej lokalizacji nadmorskiej.
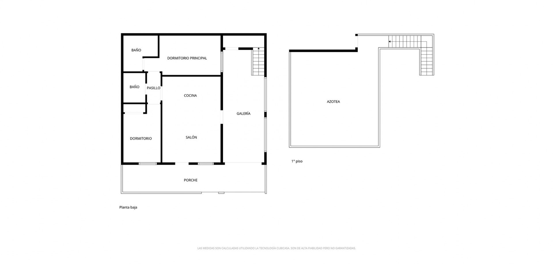
Nieruchomość została całkowicie wyremontowana w wysokim standardzie i jest gotowa do zamieszkania. Wnętrze oferuje jasną i stylową przestrzeń z otwartym, przyjaznym układem, obejmującą 2 przestronne sypialnie oraz 2 nowoczesne łazienki. Cały dom wyposażony jest w ogrzewanie podłogowe, co zapewnia maksymalny komfort przez cały rok.
Jednym z największych atutów jest przestronny taras otaczający nieruchomość dzięki narożnemu położeniu. Ta przestrzeń zewnętrzna oferuje dużo miejsca do relaksu, spożywania posiłków oraz spotkań towarzyskich, a także prywatne miejsce parkingowe na działce. Dodatkowo nieruchomość posiada prywatny taras na dachu (solarium), idealny do opalania i korzystania z klimatu śródziemnomorskiego przez cały rok.
Nieruchomość znajduje się w zadbanej wspólnocie, gdzie mieszkańcy mają dostęp do basenu.
Lokalizacja jest doskonała – w odległości spaceru znajdują się piękne plaże Mar Menor, restauracje, sklepy oraz wszystkie niezbędne udogodnienia.
✨ Najważniejsze cechy:
• Całkowicie odnowiony
• 2 sypialnie i 2 łazienki
• Ogrzewanie podłogowe w całym domu
• Duży taras wokół nieruchomości z prywatnym parkingiem
• Prywatny taras dachowy (solarium)
• Narożna działka zapewniająca większą prywatność
• Basen wspólnotowy
• Blisko plaży i udogodnień
To doskonała okazja, aby nabyć stylowy i łatwy w utrzymaniu dom w jednej z najbardziej popularnych nadmorskich lokalizacji Costa Cálida – idealny jako dom wakacyjny, inwestycja lub miejsce do stałego zamieszkania.
Podane informacje mogą zawierać błędy i nie stanowią części żadnej umowy. Oferta może zostać zmieniona lub wycofana bez powiadomienia. Ceny nie obejmują kosztów zakupu.