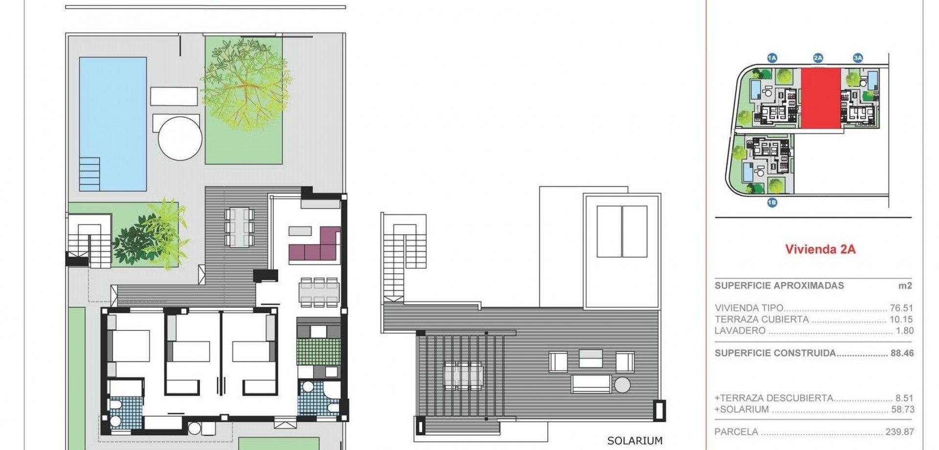
NYBYGDE TOMANNSBOLIGER I ELS POBLETS Nybygget prosjekt vil ha 4 praktfulle eiendommer med hager, privat parkering og mulighet for et privat svømmebasseng. I en uslåelig beliggenhet ved siden av sentrum, kjøpesenter og alle slags tjenester, vil det bli bygget boliger med tre soverom, to bad med hage og solarium. Nybygde tomannsboliger bygget over 1 etasje og har 3 soverom, 2 bad, åpen kjøkkenløsning med stue, garderober, privat hage med parkeringsplass utenfor veien, privat solarium. Et alternativ for et privat basseng mot en ekstra kostnad. Funksjoner: -Innebygde garderober, fordelt med hengestang, skuffer og innvendig LED-belysning. Installasjon av lineær LED-belysning i hele huset. -Installasjon av klimaanlegg i stue og soverom (inkludert maskinen). -USB-ladere på soverommene. -Installasjon av individuelle solcellepaneler uten batteri på taket i henhold til forskrifter. -Forinstallasjon av elbillader. -Forsterket betongkonstruksjon. Fasade med monolag-finish. -Utvendig tømrerarbeid i PVC med termisk brudd, doble vinduer med luftkammer av typen ¨Climalit¨ og lav emissivitet. -Pansret inngangsdør. -Porselen eller lignende innvendig gulvbelegg, gulvlister lakkert for å matche det innvendige snekkerarbeidet. -Vertikale vegger på bad og toaletter i porselen eller lignende. -Vegg ferdigbehandlet i glatt plastmaling. Kjøkken med høy- og lavskap, benkeplate i Silestone eller lignende, utstyrt med induksjonstopp med integrert ventilasjonssystem og elektrisk stekeovn. -Sanitærutstyr av forglasset porselen med innebygd sisterne. -Flate dusjkar i harpiks, med dusjvegger inkludert. - Vask med skap og speil med innebygd LED-belysning på alle bad og toaletter. -Blandebatterier. -Innvendige dører hvitlakkert. Els Poblets ligger mellom Alicante og Valencia, 1 time fra hver av flyplassene. Els Poblets ligger på en slette dannet av alluvial jord fra Girona-elven. Den strekker seg over ca. 1 km kystlinje ved Middelhavet og inneholder stranden Almadrava. På grensen til Denia og El Verger er det 24 km med fantastiske BLUE FLAG-strender å velge mellom. Byen og stranden ligger rundt 1 km fra hverandre, og mens mange spanske kystbyer er stengt om vinteren, er Els Poblets åpen hele året med alle fasiliteter som barer, banker, butikker, restauranter, supermarkeder, frisører og er en vennlig by med blandede nasjonaliteter, hovedsakelig spanske med noen eks-pats.
Informasjonen som gis her er gjenstand for feil og utgjør ikke en del av noen kontrakt. Tilbudet kan endres eller trekkes tilbake uten varsel. Prisene inkluderer ikke kjøpskostnader