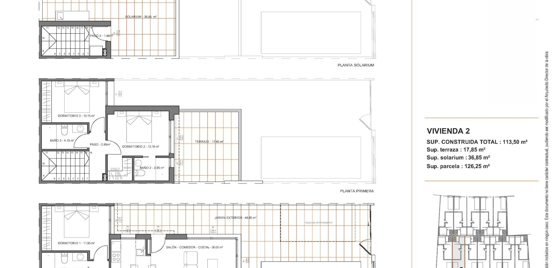
Moderne rekkehus med privat basseng nær sjøen i Santiago de la Ribera Ligger i San Blas-området i Santiago de la Ribera, Murcia, et av de mest attraktive områdene ved Mar Menor. Dette prosjektet består av 12 villaer med 3 soverom og 2/3 bad, inkludert privat basseng, terrasse og solarium med sommerkjøkken i utvalgte boliger. Villaene har elegante og funksjonelle interiører, fullt utstyrte kjøkken med alle hvitevarer, og inkluderer også forhåndsinstallert klimaanlegg. Dette prosjektet tilbyr en unik mulighet til å nyte design, komfort og stil bare noen få minutter fra sjøen. Eksklusivt nybyggprosjekt kun 1 km fra stranden Oppdag dette begrensede tilbudet på rekkehusvillaer i Santiago de la Ribera, en sjarmerende kystby på Murcias kyst, kjent for sin avslappede livsstil, rene strender og utmerkede klima hele året. Disse nye boligene ligger bare 1 km fra kysten av Mar Menor og tilbyr den perfekte kombinasjonen av privatliv, komfort og nærhet til viktige tjenester og fritidsaktiviteter. Moderne design med funksjonell planløsning Hver villa er nøye fordelt på to etasjer, og noen av enhetene har solterrasse på taket, noe som gir god plass til et moderne liv. Eiendommene har: 3 store soverom, inkludert ett i første etasje 2 eller 3 komplette bad. Privat hage og svømmebasseng. Terrasse i første etasje og noen enheter med solterrasse på taket, ideelt for soling eller å ta imot gjester. Privat parkering på tomten. I tillegg har to av boligene installert solcellepaneler for energibesparelse. Høy kvalitet på finish og utstyr Boligene er bygget med sans for detaljer og i henhold til moderne standarder, og inkluderer: Pansret inngangsdør Motoriserte aluminiumsgardiner Møblert kjøkken med hvitevarer Baderomsmøbler med speil og lys Dusjkar i porselen tilpasset badet med installerte dusjvegger Forhåndsinstallert klimaanlegg Disse boligene er designet for å nytes hele året, enten som hovedbolig, fritidsbolig eller investering for ferieutleie. Privilegert beliggenhet på Costa Cálida Santiago de la Ribera tilbyr en dynamisk middelhavsstil med alt i nærheten: Strand (Mar Menor) – 1 km La Ribera kjøpesenter – 2 km Roda Golf – 5 km San Javier flyplass – 6 km Lo Pagán marina – 4 km Dos Mares kjøpesenter – 3 km Utmerket veiforbindelse til Murcia (40 km) og Cartagena (30 km) Med sin rike lokale kultur, ukentlige markeder, strandpromenader og muligheter for vannsport er Santiago de la Ribera et ideelt sted for å nyte det beste av Costa Cálida. Gjør drømmen om å bo ved kysten til virkelighet Ikke gå glipp av denne unike muligheten til å kjøpe en elegant nybygget villa i et av de mest ettertraktede områdene på kysten av Murcia. Kontakt oss nå for mer informasjon eller for å avtale en visning.
Informasjonen som gis her er gjenstand for feil og utgjør ikke en del av noen kontrakt. Tilbudet kan endres eller trekkes tilbake uten varsel. Prisene inkluderer ikke kjøpskostnader