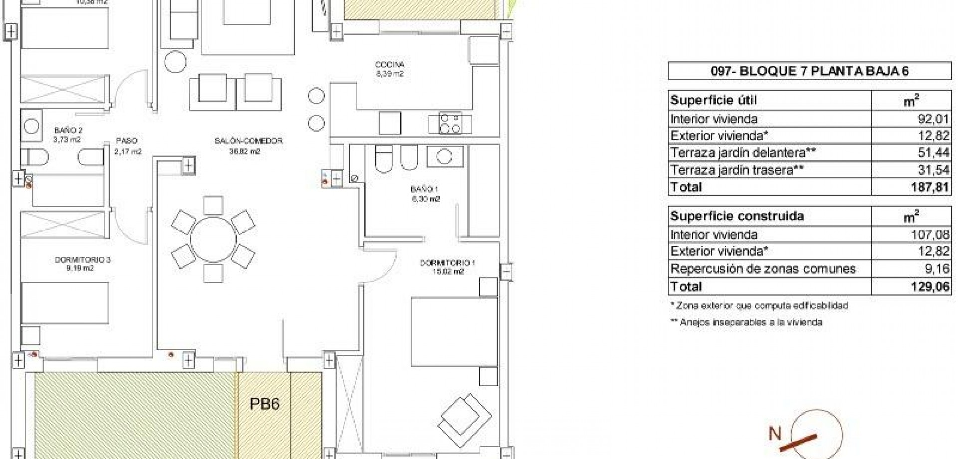
NEU GEBAUTE WOHNANLAGE IN VERA Neubau einer Wohnanlage in Vera, nur 400 m vom riesigen Strand von Vera namens "El Playazo" entfernt. Die Typologien sind im Erdgeschoss mit zwei privaten Gärten, eine in jeder Orientierung, die Sie genießen können Sonne oder Schatten, wann immer Sie wollen, je nach der Tageszeit oder der Saison des Jahres. Die ersten Stockwerke verfügen über Terrassen und die Penthäuser über große Solarien. Alle Wohnungen verfügen über hohe Decken (2,95 m), die ein großzügiges Raumgefühl vermitteln. Die Küche ist komplett möbliert und ausgestattet und in den Wohn-Essbereich mit Barbereich integriert. Die Türen und Einbauschränke sind weiß lackiert und der Fußboden besteht aus laminiertem Holz. Die Warm-Kalt-Klimaanlage und das Warmwasser werden durch ein hochmodernes DAIKIN Aerothermal-Gerät erzeugt, eine Technologie, die bis zu 70% des Stromverbrauchs im Vergleich zu herkömmlichen Systemen einspart. Alle Bäder sind mit einer Dusche anstelle einer Badewanne, mit versenkten Spiegeln und im Hauptbad mit einer Steinarbeitsplatte und einer Glastrennwand ausgestattet. Die Jalousien im Wohnzimmer und im Hauptschlafzimmer sind elektrisch, hermetisch abgedichtet und haben verstellbare Lamellen. Die Gärten und die Sonnenterrasse werden mit einem Bodenbelag aus Kunstrasen und einem schönen, Holz imitierenden Pflaster geliefert. Zu jedem Haus gehört ein privater Außenparkplatz. Jeder Block der Promotion hat einen unabhängigen Aufzug. Sowohl die Gebäude als auch die Wohnungen verfügen über eine Reihe von bioklimatischen Architekturmerkmalen (Ausrichtung, Isolierung, Fenster und Rollläden, Pergolen), die eine optimale natürliche Regulierung von Belüftung, Temperatur und Licht in den verschiedenen Jahreszeiten ermöglichen. Die Gemeinschaftsbereiche bestehen aus Fußgängerplätzen und Grünflächen, mit einem großen Schwimmbad für Erwachsene und einem weiteren für Kinder auf dem zentralen Platz. Die gesamte Urbanisation ist frei von architektonischen Barrieren für Behinderte. Hier sind Ruhe und Entspannung garantiert. Vera ist einer der besten FKK-Orte in Europa, der für die Qualität und Reinheit seines Wassers bekannt ist. Er bietet sechs Kilometer Strand (Las Marinas-Bolaga, Puerto Rey, El Playazo, Quitapellejos). Vera grenzt an die berühmten touristischen Ziele wie Mojacar und die Höhlen von Almanzora. Die Wohnanlage liegt ca. 1,5 Autostunden vom Flughafen Murcia - Corvera und ca. 2 Stunden vom Flughafen Alicante entfernt.
Diese hier angegebenen Informationen unterliegen Fehlern und sind nicht Bestandteil eines Vertrages. Das Angebot kann ohne vorherige Ankündigung geändert oder zurückgezogen werden. Die Preise beinhalten keine Einkaufskosten.